Назовите оператору контакт центра при звонке ваш промокод:    

Безопасная аренда

Подробнее

Онлайн просмотры и договор с цифровой подписью

Помещение
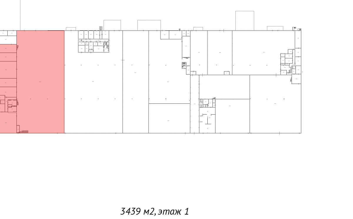
Этаж 1
Площадь 12 437.8 м2
Ставка 1 099 руб./м2
Характеристики
Безопасность
Охрана Круглосуточная
Коммуникации
Телефон есть
Интернет оптоволокно
В арендную плату входит
  • Профессиональное управление
  • НДС
Оплачивается отдельно
  • Клининг
План помещения
Описание
Крупный складской комплекс площадью 12437,8 кв. м.
Адрес: ул. Мебельная, д. 5.

Помещения сдаются напрямую от собственника без посредников!

Отличный вариант для склада крупного ритейла, дистрибьюторских компаний, маркетплейсов и интернет-магазинов.

Наши преимущества:
– высокие потолки 5,9 м позволят организовать многоуровневое стеллажное хранение и установить складские системы;
– прочное беспылевое покрытие пола предотвращает образование пыли и обладает устойчивостью к повреждениям;
– имеется отдельный вход с улицы, а также ворота для грузового транспорта с габаритами 3,5 × 4,5 м;
– удобная прилегающая территория для осуществления погрузочно-разгрузочных работ;
– круглосуточная охрана, которая исключит доступ случайных посетителей на территорию;
– собственные мокрые точки для ваших сотрудников.

В составе предлагаемого комплекса есть офисные помещения, благодаря которым все рабочие процессы будут находиться в одном месте.

Складской комплекс имеет полное инженерное оснащение: отопление, освещение, выделенная электроэнергия, ХВС, водоотведение.
В каждом помещении установлены противопожарные датчики.

Доступно подключение высокоскоростного интернета и цифровой телефонии по запросу арендатора.
Также предоставим доступ к охраняемой парковке.

По всей территории ведётся видеонаблюдение и осуществляется круглосуточная охрана.
Доступ арендаторов, сотрудников и посетителей строго по пропускам.
Действует система контроля и управления доступом, которая позволяет вести учёт рабочего времени сотрудников.

Складской комплекс находится в зоне отличной транспортной доступности.
Вашим сотрудникам и партнёрам будет удобно добираться на любом виде транспорта:
– автомобилисты оценят близкое расположение к Приморскому шоссе с доступом на ЗСД и КАД;
– дойти пешком от станции метро "Старая Деревня" можно всего за 10 минут;
– автобусные остановки находятся в минуте ходьбы от здания.

Через дорогу расположены столовая и магазин.
+7 (812) 292-41-77
Перезвоните мне
Хотите посмотреть? Покажем вам это помещение и несколько похожих
Запишитесь на просмотр
Вас также может заинтересовать
21.1 м2
24 454.9 руб
62.8 м2
44 525.2 руб
290.4 м2
185 565.6 руб
475.2 м2
554 083.2 руб
699.4 м2
1 070 082 руб
2117 м2
4 085 810 руб
4409 м2
4 863 127 руб